Nằm tại thành phố Vinh, Nghệ An, Crabsark & Crawfish Restaurant là một dự án tiêu biểu do TNT architects thực hiện, chủ trì bởi Kiến trúc sư Bùi Quang Tiến. Công trình có diện tích khoảng 370m², hoàn thành vào năm 2016, được thiết kế như một không gian trải nghiệm ẩm thực vừa hiện đại vừa gần gũi với bối cảnh địa phương.
Điểm nổi bật trong thiết kế là sự kết hợp vật liệu đa dạng – khung thép, kính lớn, gạch trần và gỗ – tạo nên một hình khối công trình vừa mạnh mẽ vừa ấm áp. Mặt ngoài mở, sử dụng hệ kính xuyên suốt, cho phép khách hàng từ đường phố có thể quan sát vào bên trong, đồng thời tạo sự kết nối trực quan giữa không gian nội thất và cảnh quan đô thị.
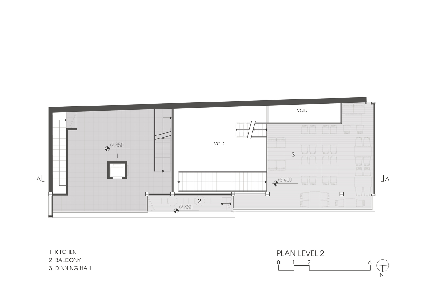
Không gian bên trong nhà hàng được tổ chức thành sáu khu vực chức năng, phân bổ trên năm cao độ khác nhau. Các không gian này liên kết với nhau qua hệ cầu thang thép và những đường cong mềm mại, tạo nên nhịp điệu di chuyển linh hoạt, gợi mở cảm giác phiêu lưu trong hành trình thưởng thức ẩm thực.
Cách xử lý nội thất cũng cho thấy sự tinh tế: gạch trần và thép đen mang lại cảm giác công nghiệp mộc mạc, đối lập với chất liệu gỗ tự nhiên đem lại sự ấm cúng và gần gũi. Không chỉ dừng lại ở việc tạo ra một nơi thưởng thức cua và crawfish, công trình còn hướng tới việc xây dựng một trải nghiệm trọn vẹn, nơi kiến trúc đóng vai trò cầu nối giữa văn hoá ẩm thực và đời sống đô thị.
Với Crabsark & Crawfish Restaurant, TNT architects đã cho thấy một tư duy thiết kế cân bằng giữa hiện đại và bản địa, giữa sự phóng khoáng của không gian mở và sự chặt chẽ trong tổ chức công năng. Đây là một minh chứng rõ nét cho hướng đi kiến trúc của TNT – nơi kiến trúc không chỉ bao bọc mà còn đồng hành cùng trải nghiệm của con người.
Thông tin dự án
- Tên công trình: Crabsark & Crawfish Restaurant
- Diện tích: 370m²
- Địa điểm: Vinh, Nghệ An
- Kiến trúc sư chủ trì: Bùi Quang Tiến
- Thiết kế: TNT Architecture
- Năm hoàn thành: 2016
- Nhiếp ảnh: Triệu Chiến





























